Toggle navigation
HENAUOJ
常见问答
讨论版
题目列表
来源/分类
状态
排名
竞赛
作业
[
题目列表
状态
排名
OI 排名
统计
]
Login
OJ现已增加邮箱找回密码功能,还没有绑定邮箱的同学们请抓紧时间,以免密码丢失无法找回
问题 F: yg学长の试炼之 六:双?多车错!
问题 F: yg学长の试炼之 六:双?多车错!
时间限制:
1 Sec
内存限制:
128 MB
提交:
6
解决:
1
[
提交
] [
状态
] [
讨论版
] [命题人:
]
题目描述
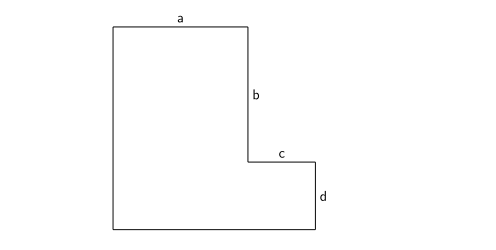
有下面这样的一个网格棋盘,a, b, c, d 表示了对应边长度,也就是对应格子数:
当 a = b = c = d = 2 时,对应下面这样一个棋盘:
要在这个棋盘上放k个相互不攻击的车,也就是则k个车没有任意两个车在同一行或同一列,问有多少种不同的方案。
输入
输入一行五个非负整数 a, b, c, d, k;
(0 <= a, b, c, d, k <= 1000且至少有一种可行的方案)
输出
输出一行一个整数表示答案对100003取模后的结果。
样例输入
Copy
2 2 2 2 2
样例输出
Copy
38